Expertise en conception mécanique

Méthodologie

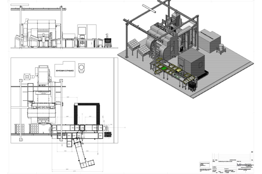
Contrôle/assistance de conception sur dossier d'étude mécanique

Optimisation dossier d'étude

Définition des principes d’élaboration des études mécaniques, décomposition des processus pour assurer les fonctions souhaitées.
Mode opératoire pour saisie en 3D et construction des documents pour optimiser la gestion et les évolutions.

Reprise de dossier client pour restructuration et optimisation, ensemble 3D mise en plan et gestion des nomenclatures et bases de données.

Avant projet

Expertise
Demande de renseignement

Contactez nous au


ou

Ce site utilise des cookies et vous donne le contrôle sur ce que vous souhaitez activer Tout accepter Personnaliser