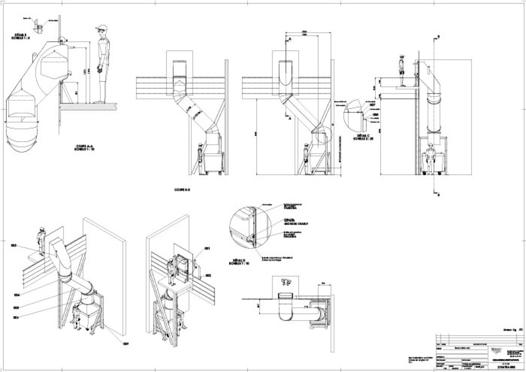
Goulotte grande section pour évacuation sacs de déchets vers un conteneur avec mise en sécurité du niveau haut.
Contactez nous au
ou